Skip to content
View in the app

A better way to browse. Learn more.

Thailand News and Discussion Forum | ASEANNOW

A full-screen app on your home screen with push notifications, badges and more.

To install this app on iOS and iPadOS
  1. Tap the Share icon in Safari
  2. Scroll the menu and tap Add to Home Screen.
  3. Tap Add in the top-right corner.
To install this app on Android
  1. Tap the 3-dot menu (⋮) in the top-right corner of the browser.
  2. Tap Add to Home screen or Install app.
  3. Confirm by tapping Install.

Passive Cooling Residence- For The Tropical Climate

Featured Replies

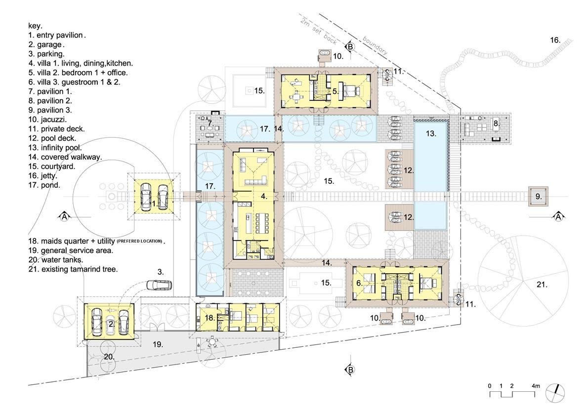
Shalimarr garden residence is located in Kanchanaburi, West

Thailand, above the River Kwai. The project has presented a great opportunity
to work with a tropical vernacular architecture which is designed for optimized
passive air flow with a splash of modernism in the project to keep it
contemporary. The main villas are
constructed in Bali to control quality and the remaining concrete buildings are
constructed in Thailand.


Kanchanaburi is one of the hottest provinces in Thailand.
March and April are the hottest months; temperature can easily sore up to 40
degrees, so this was the beginning point for the design. Maximized air flow and
solar control are optimized as key
environmental strategies, shade walls, cooling ponds, local plants are located
throughout for natural cooling and plantation Merbau and Bangkira timbers are
used internally and externally. Large Balinese style tiled roofs will seem to
float above the site, these all combined will give a distinct oriental flavour
in tune with its environment.


Passive ventilation in a tropical climate: Shade, vegetation
and optimised season air flow are used to cool down the exterior and interior
environments of a tropical house. Houses are also designed to naturally exhaust
hot air from the interior through stack affect. Materials are selected for
their ability to assist in reducing ambient air temperatures.

post-127017-0-42109100-1364267554_thumb.

post-127017-0-28955900-1364267579_thumb.

post-127017-0-06502000-1364267610_thumb.

post-127017-0-45774000-1364267648_thumb.

post-127017-0-45644700-1364267675_thumb.

post-127017-0-56227300-1364267709_thumb.

post-127017-0-03483500-1364267740_thumb.

post-127017-0-81492300-1364267759_thumb.

post-127017-0-90945800-1364267772_thumb.

post-127017-0-46667900-1364267782_thumb.

Fascinating. How realistic would it be to expect affordable versions of these to be made available to the average person? The benefits to both planet and person could be huge.

Looks nice.

I would have avoided hipped roofs so you could use gable vents to let the hot air out at the top rather than hoping it will come down and out of the top lights.

@Katipo, look at any traditional Thai house and you'll see all the design aspects used to good effect.

Sadly the locals would rather have a 'modern' concrete box that has none of the traditional design incorporated and requires loads of active cooling sad.png

"I don't want to know why you can't. I want to know how you can!"

  • Author

@ Katipo and Crossy. Thanks for your comments. I think any
house can incorporate these ideas with minimal additional construction cost.
Even a terrible concrete building. Just needs to be considered in the correct
way to work with its environment. Thai's where really good at designing for
natural air flow and climate once upon a time. Modernism then crept in (electricity,
ac, modern materials and modern architectural styles) which now dominate and
override any environmental design.



Yes, a vertical gable would be quite effective for cooling as
well (Just like a traditional Thai roof).



Cheers,

Thanks for sharing your design concepts. The thread presents a good opportunity for a discussion on rational design responses to Tropical Climates - note the plural terms.

the Project site, along with much of non-peninsular Thailand is an "Aw" Climate on the Koppen System, with its extreme high temperatures occurring in a relatively long, parched dry season with very low humidity. The Aw climate borders on being a Sahel - type climate, and is very different from the humid Tropical Climate of the Malay Peninsula or Islands such as Bali. The rational design responses, then, will also be different.

http://archive.unu.edu/unupress/unupbooks/80077e/80077E0a.htm presents waaay more Thailand climate data than most will want to delve into, but the architect or owner/designer-builder who wants to develop a rational response to climate must understand his site's design criteria precisely.

The assumption that a Tropical Climate calls for minimizing mass & maximizing airflow is counter-productive in the Hot/Dry Season of an Aw Climate Zone, when tightly closing up the occupied spaces and using indoor thermal mass to maintain lower internal temperatures during the heat of the day is a more rational response. Here, stone & concrete are preferred to wood for their thermal storage qualities, and an articulating facade that is user-operable is preferable.

I'm not sure of your site's elevation, but in the cold season in the Western mountains a high mass system that allows you to close up the house will again be an asset.

I believe the Balinese, low mass, wood, Tropical Island design response indicated is going to work against your owner's interests in terms of thermal comfort and cost of maintaining comfortable indoor climate for substantial portions of the year.

in terms of site design, the parking lot is up-windstream of the occupied spaces. So it appears that super-heated air will be drawn into the indoor spaces, with little mitigation by the narrow pond unless care is taken to shade well the parking areas.

The hip roofs do not create a Stack effect for convective cooling, but pool hot air in the occupied space, where it mixes with the cooler air below via convection and warms that air up. A gable vent, stairwell or thermal chimney would create a Stack Effect.

  • Author

Hi, I think those are some good comments you have made with
some fair considerations, particular the link to the useful climate data.



The project is elevated 18 m above the River Kwai, or 99m
above sea level. It has long 1.4m eaves
which drop below the window head heights, reduce horizontal rain and prevents direct
high angled mid-day sunlight entering the building.



I think there are a few questions that need to be put on the
table:



How do you correctly design for Thermal mass given its ability to
absorb radiant energy from the sun?



Does Thermal mass really have cooling properties which can cool down a
building?



Is Thermal mass the correct material for Thailand and a Tropical
climate?



Concrete (Thermal mass) is relatively new modern building material to Thailand. It’s cheap,
reliable and insect resistant. It is also very high in embodied energy and is a
super conductor of radiant energy (sunlight); this significantly increases the
temperatures of both the external and internal environments. Best case example,
look at the glass concrete towers throughout Bangkok, the heat they collect
through solar gain and the amount of AC load required to cool them. Also, look
at the streets, concrete roads, asphalt roads etc. These all emit significant
amounts of heat making cities and towns unbearable at times. In the industry we
refer to this as the heat island affect- where there is a temperature difference of many degrees between the inner city
and outer city. Same principles apply for small towns and concrete villas throughout
the country.



Thermal mass will always collect radiant energy from the sun and dissipate heat throughout the
evening time when external and internal temperatures cool. Put you hand just 1
inch above a concrete wall at 7 pm; you will feel heat dissipating out of it. This
will be typical for all un-insulated walls and roofs. Floors work differently
because they connect directly to earth dissipating heat. If the surrounding ground earth temperature is cooler
(most likely), heat will transfer from the slab to the earth. Thai floors are
generally tiled so this helps insulate floors from direct solar gain (radiant
energy load) and helps concrete to remain cooler. However, I’m uncertain if it
has a cooling effect or just a perceived cooling effect given the external
temperature are already hot and the floor might be the coolest part of the
building. As a professional, I would not recommend to clients they use concrete
for cooling. This would be a recipe for disaster in my view.



How to correctly and quickly get your head around climate design
without getting bogged down in detailed analysis?



99% of the construction industry in Thailand has minimal understanding of how to deal and
design for climate. Its one of the significant contributing factors making cities
so hot and houses which are so uncomfortable to live in. All this adds to increased energy load, environmental problems and ulitimately climate change. And we need AC to survive- so what to do about it?
Keep in mind AC was invented in 1902 so its little over 100 years old. Thailand
has been around a lot longer than that. Climate design can be very complex and
it can also be simplified into key areas for designers/ client to simply
understand, seasonal wind paths, seasonal sun paths, local micro climate
conditions, correct material design for the correct climate and most importantly
ask your next door neighbour what the climate conditions are like and what they
think.



Stack effect and passive ventilation techniques.



Accept Balinese gables hips aren’t the ideal roof type for this climate, but I guess we are at the
whim of clients, magazines and design preferences- so we make it work as best as possible.



How affective the stack effective will be is something we will monitor for Kanchanaburi.
Essentially we have designed low floor level windows to bring in cooler ground
air. As the air enters it will be naturally heated, the air will rise, and hot
air will gather in the main roof volume and then will be pushed through
mid-level ‘top light windows’ which surround the entire building perimeter.
That’s the theory anyway and I believe it will work. There are better ways of achieving this fore
sure. However, diplomacy gets things done and built.



Passive air flow and AC combined is the likely best scenario for Thailand.



For the Kanchanaburi case study, ultimately we are designing for two types of living scenarios.

One scenario where the AC system is switched off and we are relying on passive air flow
techniques to ventilate and cool (winter months). Fans could also assist for
option one buy pulling air upwards, creating an induced air current. Option two
requires the AC to be switched on for cooling, however due to the passive
airflow design strategies around the external envelope of the house and timber
materials this reduces the overall energy load required to cool the houses.
Instead of having the system switched to high for example, we will be ok at
medium or low. If we use thermal mass as you have suggested material
temperatures will be higher increasing the overall energy demand for the AC.

the expression "passive cooling" is an oxymoron and should be replaced by "assisted cooling". active cooling is not possible without energy input no matter by what means that energy is generated or available.

it goes without saying that the construction itself as well as the selected materials can make a huge difference in energy demand. that applies to tropical countries and even more to countries where mainly or exclusively heating is required.

unfortunately the average Joe / Somchai can't afford the optimal "tree hugger home" and most of those who can afford it are put off when they look at the miniscule return on invested capital.

  • Author

Designing a basic building to work with its environment doesn’t put it out of reach for Mr Joe and Mr Somchai. That’s simply not true.

Any building/house can be considered using these principles- its lateral practical thinking. All one needs to do is look at traditional Thai buildings from a particular region and apply the same ideas using modern materials and construction methods.

Like everything, abit of education and practical thinking goes a long way to solving these problems.

To put it in the too hard basket just doesn’t make any sense.The principles are very straight forward if given some consideration.

All one needs to do is look at traditional Thai buildings from a particular region and apply the same ideas using modern materials and construction methods.

We did just that, although our primary concern was style rather than the cooling effect.

We have 5m high cathedral ceilings with insulation on the gyproc coupled with gable and soffit vents. 1.5m eaves keep the sun off the walls of the upstairs rooms, downstairs rooms are on the north and west sides of the house and receive little sun anyway.

Most of the doors and windows are open all the time for through breeze, we do close up the bedroom at night and run a fan with the A/C set to 29C just to take the edge off the heat.

How well does it work you say? Well we're not polar bears but without aircon the rooms remain comfortably cool, obviously not cooler than ambient air as that's blowing through all the time but we are just fine with only a fan to move the air a bit where one is out of the main airflow.

The area under the house remains comfortable and the locals tend to hang out down there whilst I toast myself on the terrace.

Photos in this thread http://www.thaivisa.com/forum/topic/481794-housebuilding-thread/

"I don't want to know why you can't. I want to know how you can!"

  • 2 weeks later...
  • Author

Hi Crossy, I had a look through your thread. Looks like a
great project and nicely executed. I too would like to live in a traditional Thai
house one day; probably a recycled Thai antique house with Lots of old textured
teak!



I wonder if ventilating the roof volumes will make a
difference to the internal temperatures. Would be interesting to gage the air temperatures
in the upper volumes of the gables and compare these to lower mid-height temperatures
(1.7m). I guess with modern materials we are very good at sealing everything up
and making things fairly air tight. Older traditional houses perhaps aren’t as
air tight and allow air to trickle out.

I keep meaning to measure the temperatures, I'll get a round to it when I'm back from India later this month, should be interesting.

"I don't want to know why you can't. I want to know how you can!"

Create an account or sign in to comment

Recently Browsing 0

  • No registered users viewing this page.

Account

Navigation

Search

Search

Configure browser push notifications

Chrome (Android)
  1. Tap the lock icon next to the address bar.
  2. Tap Permissions → Notifications.
  3. Adjust your preference.
Chrome (Desktop)
  1. Click the padlock icon in the address bar.
  2. Select Site settings.
  3. Find Notifications and adjust your preference.